





























































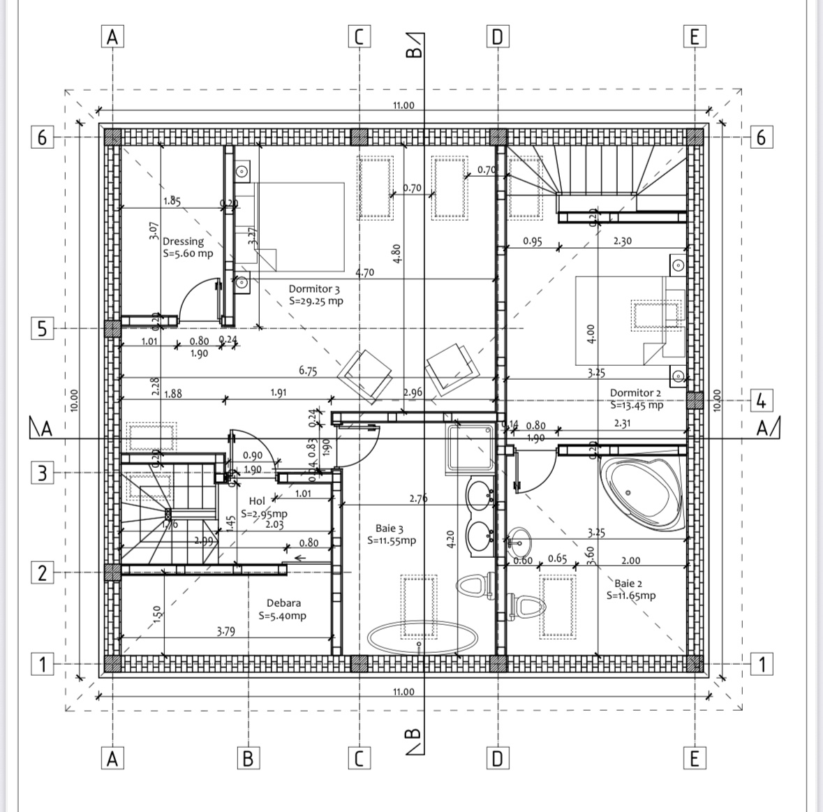
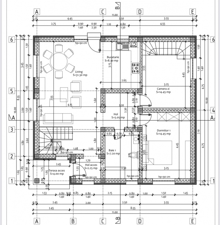
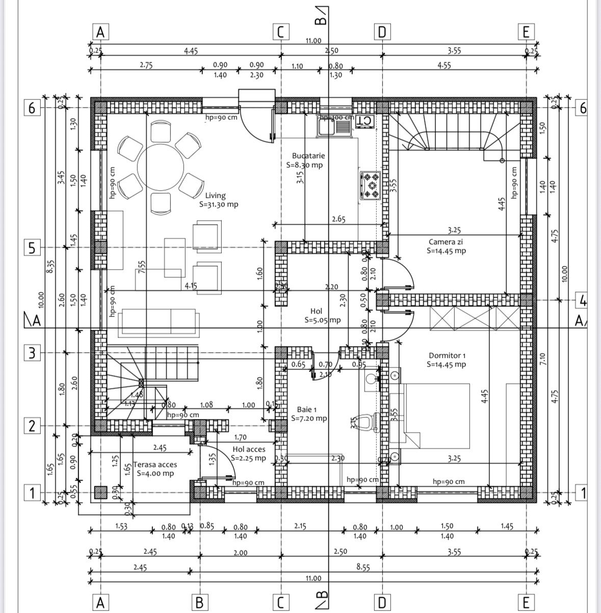
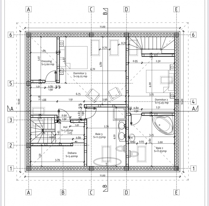
Va invitam sa descoperiti un imobil deosebit situat in Orasul Buftea, pe strada Anemonelor nr.26. Casa are o suprafata totala de 160 mp, constructie in Anul 2024, are 5 Camere: living, camera de zi si 3 dormitoare, 3 Grupuri Sanitare si 2 dressinguri. Imobilul are regim de inaltime: P+M, suprafata construita la sol: 110 mp si este construit pe un teren cu o suprafata totala de 357 mp. Casa este construita din Caramida si BCA. La exterior este izolata cu termosistem de 10 cm si este acoperita cu tabla. Casa este conectata la toate utilitatile: Apa, Canalizare, Gaz, Electricitate, Cablu TV, Internet, dispune si de un put, Incalzirea se face cu Centrala Termica. O locuinta ideala pentru rezidenta, casa de vacanta sau oportunitate de investitie pentru diverse afaceri.Va asteptam la Vizionare.