









Această vilă se remarcă printr-o compartimentare excelentă și spații generoase, fiind situată într-o zonă căutată din Pipera.
🏡 Vilă Modernă P+2E în Pipera – Spațiu, Confort și Terasa Panoramică
Vă prezentăm o proprietate deosebită, ideală pentru o familie care își dorește o locuință spațioasă, inteligent compartimentată și finisată conform celor mai înalte standarde. Cu o suprafață utilă totală impresionantă și o terasă spectaculoasă la ultimul nivel, această casă oferă tot confortul necesar vieții urbane moderne.
📐 Detalii Suprafețe pe Niveluri
Proprietatea este dispusă pe trei niveluri (Parter + 2 Etaje), având următoarea configurație:
1. Parter – Zona de Zi și Socializare
Suprafață utilă: 81.6 mp | Suprafață totală: 86.9 mp
Parterul este inima casei, oferind un spațiu deschis și luminos pentru întreaga familie.
Living: 19.2 mp
Dining: 15.6 mp (perfect pentru cine festive)
Bucătărie: 17.6 mp (spațioasă și ergonomică)
Birou: 10.1 mp (ideal pentru lucrul de acasă)
Spațiu Tehnic: 9.7 mp
Depozitare: 2.3 mp
Grup sanitar: 1.8 mp
Hol acces: 5.3 mp
Casa scării: 5.3 mp
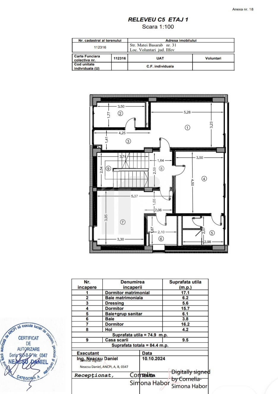
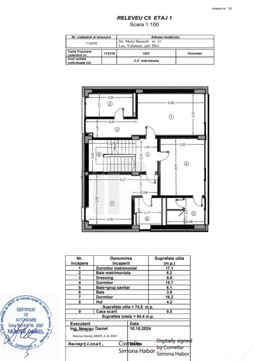
2. Etajul 1 – Zona de Odihnă (Night Area)
Suprafață utilă: 74.9 mp | Suprafață totală: 84.4 mp
Etajul 1 este dedicat intimității, cuprinzând 3 dormitoare generoase și multiple băi.
Dormitor Matrimonial: 17.1 mp + Baie matrimonială: 6.2 mp
Dormitor 2: 15.7 mp
Dormitor 3: 16.2 mp
Dressing: 5.6 mp
Baie principală: 3.8 mp
Baie + Grup sanitar: 6.1 mp
Hol: 4.2 mp
Casa scării: 9.5 mp
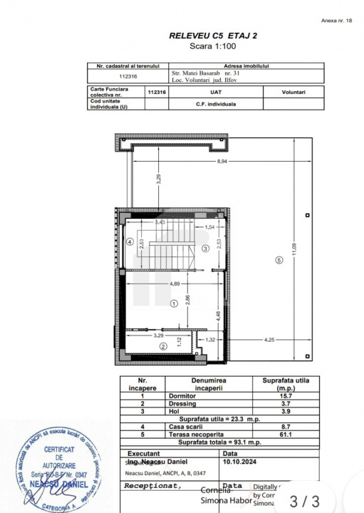
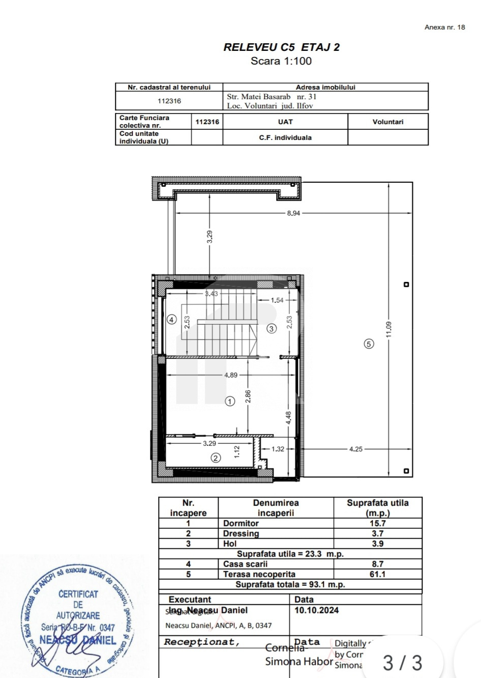
3. Etajul 2 – Spațiul de Relaxare și Terasa
*Suprafață utilă: 23.3 mp | Suprafață totală (incl. terasă): 93.1 mp
Piesa de rezistență a casei, acest nivel oferă un refugiu privat și o vedere panoramică.
Dormitor/Camera de relaxare: 15.7 mp
Dressing: 3.7 mp
Hol: 3.9 mp
Casa scării: 8.7 mp
Terasa neacoperită: 61.1 mp (Un spațiu imens pentru lounge, grătar sau grădină urbană)
Compartimentare: 5 dormitoare (incluzând biroul de la parter), ideale pentru familie care doreste intimitate si spatii aerisite.Totodata, suprafețe vitrate mari ofera o iluminare naturală excelentă în toate încăperile.
Terasa de 61 mp: Un avantaj rar întâlnit, perfectă pentru momente de relaxare în aer liber, dar si o curte libera, generoasa de 250m.
Proprietatea se vinde complet finisata. Termen de predare, 3 luni.
Locație: Str. Matei Basarab, Voluntari – o zonă liniștită, cu acces rapid către punctele de interes ale capitalei.