





Cladirea de birouri Vitan Center se află în Piața Vitan, la doar 500m de Piața Alba Iulia și București Mall.
Accesul este facil din Calea Vitan și din Calea Dudești.
Cladirea dispune de fațadă vitrată, recepție, pază 24/24, supraveghere video, sistem antiincendiu, pardoseală flotantă, sistem de climatizare, , termopane Schuco și 3 lifturi.
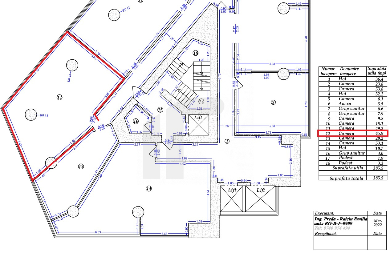
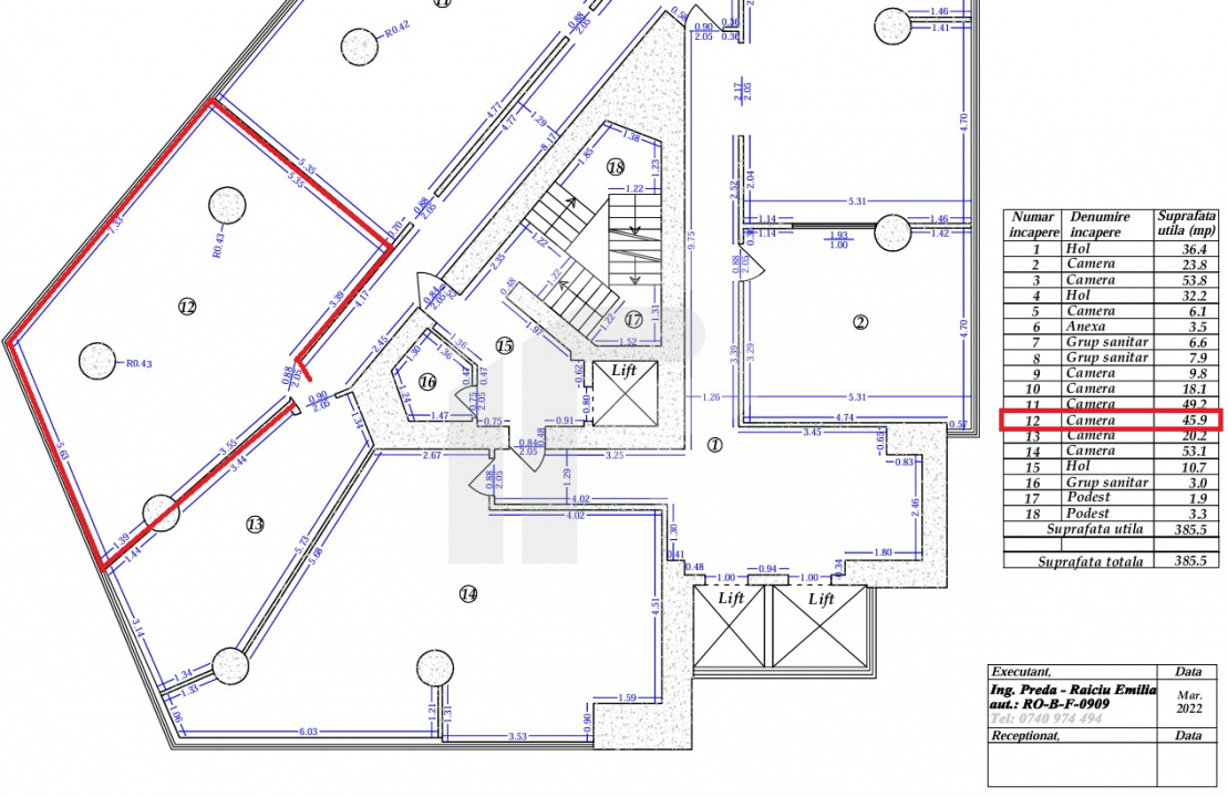
Spațiul de birouri se află la etajul 1, dispune de o cameră având suprafața utilă de 45.9 mp la care se adaugă spatiile comune (hol, grupuri sanitare). Spațiul are acces la doua grupuri sanitare comune.
În prețul chiriei sunt incluse: încălzirea și răcirea spațiului și a suprafețelor comune, apa, colectarea gunoiului, dezinsecția, deratizarea, curățenia, paza si recepția, excepție fiind doar curentul având un cost fix de 300 lei+tva.
Pretabil pentru orice tip de activitate de birou.